【成約済】重飲食可能、天神南駅まで徒歩5分、春吉エリアの居抜き物件

外観
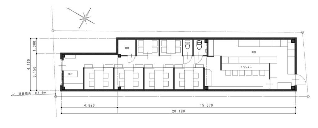
平面図
店内
店内2
外観
平面図
店内
店内2

物件の特徴

天神南駅まで徒歩5分

路面店

居抜物件

重飲食相談可能

物件詳細

物件名 プロスぺリタ天神Ⅲ 1階 物件所在地 福岡市中央区春吉3丁目25-21
建物構造 鉄骨 築年数 2014年9月
使用部分面積 83.57㎡/約25.28坪 最寄駅 福岡市七隈線 天神南駅 徒歩5分
現状(業態) 居酒屋 取引態様 媒介
契約条件

31.9665万円

保証金:8ヶ月

居抜料:830万円

セキュリティ料:1.1万円/月

看板使用料:1.65万円/月

当物件を問い合わせる

CONTACT

お問い合わせ物件【成約済】重飲食可能、天神南駅まで徒歩5分、春吉エリアの居抜き物件

    必須お名前


    例)田中 太郎

    必須フリガナ


    例)タナカ タロウ

    任意法人名


    例)株式会社〇〇

    必須電話番号


    例)090-0000-0000(固定電話でも可)

    任意メールアドレス


    例)sample@domain.jp

    必須ご要望
    ご要望をお選びください。

    任意ご相談内容
    具体的なご相談内容をご入力ください。

    プライバシーポリシー

    1.趣旨

    everyone's株式会社(以下、「弊社」とします)は、お客様の貴重な財産である個人情報を保護することは、情報社会における企業の責任であると考えております。 このような認識から弊社では、以下の項目に基づいて、お客様よりお預かりした個人情報の適切な管理および保護に努めてまいります。

    2.定義

    個人情報とは、氏名・生年月日・性別・電話番号・メールアドレス・勤務先・依頼内容等、個人に関する情報で、これらのうち1つ又は2つ以上を組み合わせることによって、特定の個人を識別することができるものをいいます。

    3.利用目的

    (1) お客様よりお預かりした個人情報は弊社内部のみにおいて(5における例外を除きます)以下の目的で利用させていただきます。
    (イ)お客様の依頼に基づく職務遂行のため
    (ロ)お客様と連絡を取るため
    (ハ)弊社のサービス内容をお知らせするため
    (ニ)サービス内容を向上させる目的で事例分析を行うため

    (2) 上記以外の目的で個人情報を利用する必要があったときには、その都度、事前に同意をいただきます。同意がいただけないときは、当該個人情報は利用いたしません。
    (3) お客様がご自身の個人情報を弊社に提供されるか否かは、お客様のご判断によります。もしご提供されない場合には、当文面に記載された弊社のサービスが提供できない場合がありますので予めご了承ください。

    4.個人情報収集

    依頼・相談・お見積りのためお客様より個人情報をお預かりする場合には、目的の範囲内において必要最小限度のご提供をお願いいたしております。

    5.個人情報不開示

    お客様よりお預かりした個人情報は、個人情報保護法23条に定める以下の場合を除き第三者に開示いたしません。
    (イ)法令に基づく場合
    (ロ)人の生命、身体又は財産の保護のために必要がある場合で、本人の同意を得ることが困難であるとき
    (ハ)公衆衛生の向上又は児童の健全な育成の推進のために特に必要がある場合であって、本人の同意を得ることが困難であるとき
    (ニ)国の機関若しくは地方公共団体又はその委託を受けた者が法令の定める事務を遂行することに対して協力する必要がある場合であって、本人の同意を得ることにより当該事務の遂行に支障を及ぼすおそれがあるとき
    (ホ)あらかじめ本人の同意を得た場合

    6.提供または預託する際の当該協力会社との守秘契約

    弊社の業務の全部または一部を外部に業務委託する際、弊社は個人情報を適切に保護できる管理体制を敷き実行していることを条件に委託先を厳選し、お客様の個人情報を厳密に管理しています。

    7.弊社Webサイトの御利用について

    アクセスログの取り扱い

    当サイトでは、アクセスされたお客さまの情報をアクセスログという形で記録しています。アクセスログは、アクセスされたお客さまのIPアドレス、ホスト名、使用ブラウザ名、アクセス日時等の情報を含んでいますが、お客さま個人を特定できる情報は含まれておりません。アクセスログは、ウェブサイトの保守管理やアクセス傾向の統計的分析のために使用しているものであり、それ以外の目的のために使用するものではありません。

    Cookie(クッキー)について

    弊社Webサイトや弊社が運用するWebサービスサイト(以降、弊社Webサイト)では、お客様がより便利に弊社Webサイトをご利用いただけるよう、「Cookie」と呼ばれる技術を使用しているページがあります。 「Cookie」とは、弊社Webサイトにお客様がアクセスされた際、弊社サーバからの指示により、お客様のパソコンにお客様からアクセスがあったことを識別するための情報を記録し、再度お客様からアクセスがあった際にお客様のコンピュータであることを識別し、弊社Webサイトをスムーズにご利用いただけるようにする技術です。弊社Webサイトの利用者数やトラフィックの調査、サービスの改善のため利用されます。 なお、お使いのブラウザによっては、その設定を変更してCookieの機能を無効にすることができます。(設定方法はブラウザにより異なります。 Cookieに関する設定方法は、お使いのブラウザの「ヘルプ」メニューでご確認ください。) その結果、弊社Webサイトに限らず、Cookieを利用しているWebページのサービスの全部または一部がご利用になれなくなることがあります。

    Google Analyticsについて

    弊社のいくつかのページでは、お客様の本サイトの訪問状況を把握するためにGoogle社のサービスであるGoogle Analyticsを利用しています。 弊社のサイトでGoogle Analyticsを利用しますと、弊社が発行するクッキーをもとにして、Google社がお客様の本サイトの訪問履歴を収集、記録、分析します。 弊社は、Google社からその分析結果を受け取り、お客様の本サイトの訪問状況を把握します。Google Analyticsにより収集、記録、分析されたお客様の情報には、特定の個人を識別する情報は一切含まれません。また、それらの情報は、Google社により同社のプライバシーポリシーに基づいて管理されます。 お客様は、ブラウザのアドオン設定でGoogle Analyticsを無効にすることにより、弊社のGoogle Analytics利用によるお客様の情報の収集を停止することも可能です。 Google Analyticsの無効設定は、Google社によるオプトアウトアドオンのダウンロードページで「Google Analyticsオプトアウトアドオン」をダウンロードおよびインストールし、ブラウザのアドオン設定を変更することで実施することができます。 なお、お客様がGoogle Analyticsを無効設定した場合、お客様が訪問する本サイト以外のウェブサイトでもGoogle Analyticsは無効になりますが、お客様がブラウザのアドオンを再設定することにより、再度Google Analyticsを有効にすることも可能です。 Google Analyticsの利用規約に関する説明についてはGoogle Analyticsのサイトを、Google社のプライバシーポリシーに関する説明については同社のサイトをご覧下さい。

    8.お客様からの使用停止、削除等の申し込みへの応諾

    お客様は、弊社に対してご自身の個人情報の開示や訂正を要求したり、または弊社がお客様の個人情報を利用、提供または預託することを中止させるために、弊社問合わせ窓口に申し出ることができます。その際、弊社はお客様ご本人を確認させていただいたうえで、合理的な期間内に対応いたします。個人情報に関する弊社問合わせ先は、次の通りです。

    everyone's株式会社
    お問い合わせフォーム
    TEL:092-285-8450

    必須
    ※チェックボックスにチェックを入れてください。

    お問い合わせ

    CONTACT

    福岡市で飲食店物件をお探しなら
    everyone's株式会社まで。
    まずはお気軽にご相談・お問い合わせください。

    電話でのお問い合わせ

    営業時間 9:00~20:00

    お急ぎのご用件はお電話にて
    お問い合わせください。

    メールでのお問い合わせ

    お急ぎのご用件はお電話にてお問い合わせください。

    ログイン・会員登録 お問い合わせ